Enhancing Energy Efficiency in Iraqi Homes: Evaluating the Impact of Adaptive Thermal Comfort and Improved Building Envelopes

Enhancing Energy Efficiency in Iraqi Homes: Evaluating the Impact of Adaptive Thermal Comfort and Improved Building Envelopes

Hasan Jumaah Mrayeh* | Ali Samir Aneed | Karrar A. Alakoul | Irfan Abdul Hussein Jaber | Ali Nassir Huseen Al-Huseeny | Abdulrahman Hamid | Husham Al-Naseri

Department of Chemistry, College of Science, Al-Muthanna University, Samawah 66001, Iraq

Department of Architecture Engineering, College of Engineering, Al-Muthanna University, Samawah 66001, Iraq

Department of Chemical Engineering, College of Engineering, Al-Muthanna University, Samawah 66001, Iraq

Department of Civil and Environmental Engineering, University of Waterloo, Waterloo, ON N2L 3G1, Canada

Department of Sustainable Design, College of Architecture and the Built Environment (CABE), Thomas Jefferson University, Philadelphia 19144, USA

Corresponding Author Email: 
hasan.mrayeh@mu.edu.iq
Page: 
553-560
|
DOI: 
https://doi.org/10.18280/ijht.430217
Received: 
26 February 2025
|
Revised: 
19 March 2025
|
Accepted: 
23 April 2025
|
Available online: 
30 April 2025
| Citation

© 2025 The authors. This article is published by IIETA and is licensed under the CC BY 4.0 license (http://creativecommons.org/licenses/by/4.0/).

OPEN ACCESS

Abstract: 

Iraqi homes currently experience power outages for 12 hours per day during the summer, leading residents to pursue alternatives to achieve more consistent power sources. The combination of a hot, arid climate and traditional building construction results in high energy consumption for thermal comfort (a large cooling load). This study explores an integrated strategy combining adaptive thermal comfort (ATC) and improved building envelope design to reduce energy consumption in typical Iraqi homes. Using IESVE software, energy consumption was modeled for three types of buildings (baseline, developed, and ultra) without and with ceiling fans as part of the adaptive thermal comfort strategy. The innovation is represented in quantifying the building energy performance under ATC by resizing the HVAC (heating, ventilation, and air conditioning) system for a typical Iraqi house as integrated with a ceiling fan. The simulation results showed that integrating ceiling fans can expand the thermal comfort zone, thereby reducing the cooling load and overall energy consumption. Results demonstrated that cooling energy savings increased up to 48% with resizing, while electricity demand reduction of 21% was observed across all scenarios and CO₂ emissions reduction of 18%. Implementing these strategies could enhance energy resilience and contribute to a sustainable future in hot climate regions like Iraq.

Keywords: 

environmental impact, thermal load, energy saving, Iraqi homes, sustainable building

1. Introduction

Iraqi homes currently experience power outages for 12 hours per day during the summer, leading residents to pursue dangerous alternatives for more consistent power supplies. The hot-arid climate and building and construction practices in the country lead to significant energy consumption to achieve thermal comfort, especially in the summer. Furthermore, electricity is generated from fossil fuels, significantly contributing to greenhouse gas (GHG) emissions [1]. In Iraq, buildings consume around 80% of electricity demand in residential (55%), commercial, and governmental buildings, and 98% of electricity in Iraq is from fossil fuels, according to the Ministry of Electricity (MOE) annual report 2023 [2]. This contributes to global warming and climate change. During the cooling season, the high load demand from air-conditioning units (ACs) results in electricity shortages. Consequently, Iraqi citizens face limited electricity supply, with only 12 hours of availability during the summer [3]. Reducing energy consumption for cooling purposes will significantly contribute to alleviating the grid load and reducing CO2 emissions.

According to the American Society of Heating, Refrigerating, and Air-Conditioning Engineers (ASHRAE) Standards of 2013 [4], the climate in Iraq is characterized as very hot and dry, with air temperatures reaching up to 48℃ during summertime and an average relative humidity of approximately 20%.

A ceiling fan is one of the most common devices used for building cooling. A literature review of the most important features of ceiling fans by Wandre et al. [5], such as design, construction, blade materials, noise reduction, aerodynamics, fan geometry, and structural analysis, will provide all the possible information related to ceiling fans for future research. A 2D and 3D numerical model for a person standing in an air-conditioned room was developed as a steady-state air flow and heat transfer to investigate the effect of a ceiling fan on the characteristics of thermal comfort. The result showed that with increasing air speed from the ceiling fan, the characteristics of thermal comfort significantly shift toward the cooler scale [6].

Creating an indoor breeze in an air-conditioned space is necessary to achieve thermal comfort. The fan parameters, such as location, diameter, number of blades, and speed, were investigated by Bassiouny and Korah [7] to find the induced flow pattern features in the space. The results show that the flow pattern has various features as it leaves the fan towards the floor. Furthermore, Hsiao et al. [8] studied the optimization for parameters of a ceiling fan (diameter, camber angle, stagger angle, number of blades, vertical and horizontal inclination angle, glide angle, etc.) for a person sitting in front of a computer by using CFD. The results showed that (after analyzing the thermal comfort conditions for the model) improving convection heat transfer is required to reach a better heat dissipation from the body of the person, and the fan can keep the thermal comfort at a reasonable level and greatly save the consumption of power.

To optimize the direct proportion between energy consumption and the greenhouse effect under a sustainable environment, Lin [9] investigated the relationship between the temperature of the human body and ceiling fan airflow (by changing fan speed and the blade plane) by using a simulation model. The results showed that the thermal comfort conditions improved by using a ceiling fan, and it was possible to keep an accepted comfort level (a higher heat load) to avoid deterioration of the sustainable environment. Luo et al. [10] investigated the thermal comfort concept; thermal manikins and humans were subjected to an experiment inside the hall with different ambient temperatures and various operation modes for the fan with respect to the ceiling-fan-integrated air-conditioning concept.

Bamdad et al. [11] studied the cooling-saving energy in Australian climate zones using mixed-mode ventilation and ceiling fans in mixed mode. The modeling was done in six cities (office buildings) with three climate scenarios (present and future). The result showed that the mixed-mode strategy had a moderate reduction in energy savings, but when integrated with a ceiling fan, it will provide additional energy savings of up to 23 percent for the present and 15 percent for the future. This was an investigation (in India) of both the set-point temperature for the cooling unit and the air velocity necessary for achieving thermal comfort with a reduction in energy in mixed-mode buildings. The results showed a 79% probability that comfort conditions can be achieved by a 3K temperature drop [12]. Although some research exists, there is a lack of evidence on the energy savings from using ceiling fans, so they studied the energy performance of a room (in India) with various set temperatures (28℃ and 30℃ compared to 24℃) and ceiling fan speeds [13]. The results showed energy savings of 44% and 67% for both 28℃ and 30℃, respectively.

The total consumption can be reduced enough to be met through solar PV panels, as mentioned by Arifin et al. [14], thus theoretically mitigating the power outages, eliminating dangerous alternative power supplies, and reducing operational GHG emissions. Given the externalities associated with CO₂ emissions, such as climate change and global warming, it is the responsibility of designers and researchers to commit to reducing CO₂ emissions. Considering that buildings contribute to 30% of overall CO₂ emissions (EPA, n.d.), energy-efficient buildings are essential to a sustainable future [15].

To reduce the high energy demand in cities, Kareem and Saleem [16] analyze the interaction between social activities, residential patterns, and green transportation through survey-based research. While the study by Al-Rubaye et al. [17] proposed to use new sustainable material to achieve good insulation with low environmental impact.

A considerable amount of electricity is consumed to provide thermal comfort, particularly cooling the space during the summer. This leads to electricity outages during the cooling season as the utility grid is overwhelmed by the high load of air-conditioning units. As a result, Iraqis typically have 12 hours of electricity per day when the load on the utility grid peaks during the summer months.

This study aims to combine the ATC approach by using ceiling fans with typical and enhanced Iraqi residential buildings to reduce overall energy consumption and carbon emissions. The key objectives of this study are as follows:

  1. Simulate and compare the cooling energy and overall energy consumption for all building envelopes (ultra, developed, and baseline) with the ATC strategy.
  2. Reducing HVAC cooling load by expanding the thermal comfort conditions by using a ceiling fan.
  3. To quantify the overall energy saving and reduction of CO₂ emission as a result of using ATC and resizing the HVAC system.
2. Methods

A typical Iraqi house will be modeled using IES VE software. Energy consumption will be estimated with and without ceiling fans (adaptive approach vs. normal approach). The required temperature for both approaches will be determined using the Center for the Built Environment’s (CBE’s) thermal comfort tool, which complies with ASHRAE standards. For the adaptive approach, there will be two scenarios. One is when the same HVAC system is used for the normal approach, and the second is when the system is resized to fit the newly targeted conditions of the adaptive approach. These simulations will be conducted for three types of envelopes. These types are baseline, developed envelope, and ultra-envelope, as proposed by some researchers [18, 19].

2.1 Building location and weather data

The site location is in Samawah, Iraq. The weather is very hot, dry, and dusty, and its climate zone is categorized as being in the 1B class according to ASHRAE [4]. The weather data was imported to IES VE software from EPW [20], and then Climate Consultant 6.0 software was used to present the dry bulb temperature X relative humidity as Figure 1(a), monthly diurnal averages as Figure 1(b), which show the global horizontal, direct, and diffuse radiation (Wh/s.q.m) with average dry bulb and wet bulb temperature, and finally the wind velocity and directions illustrated in Figure 1(c).

(a) Dry bulb temperature X relative humidity

(b) Monthly diurnal averages

(c) Wind wheel

Figure 1. The climates condition in Samawah, Iraq

2.2 Description of the house

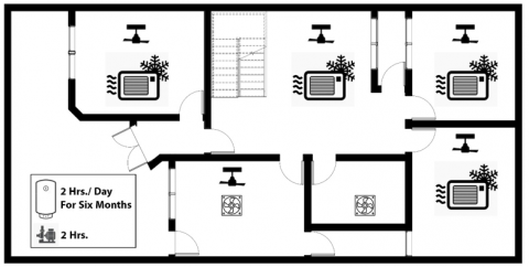
A typical Iraqi house design has been chosen to be modeled (the same model as the studies of Al-Naseri et al. [18] and Fryer et al. [19]). Figure 2 presents the house floor plan. The far end of the house is bedrooms (private zone), the middle part of the house is the living room and bathroom (semiprivate zone), and the front part is the kitchen and the guest room (public zone).

Figure 2. Floor Plan of typicsl Iraqi house

2.3 Ventilation and infiltration rate of the house

For the baseline model, no mechanical ventilation is introduced as the assumed infiltration rate is 5 ACH. While for the developed envelope model and the ultra-model, the infiltration rate is (0.6 ACH50 under the standards of the Passivhaus Institute (PHI)). Mechanical ventilation was introduced for the airtight developed envelopes. The quantity of introduced ventilation complies with the International Residential Code (IRC) [21].

2.4 Envelope, occupancy, and description of the HVAC

In Iraqi houses, only occupied spaces are being conditioned. The AC units are turned on when spaces are occupied and off when they are not. Figure 3 presents the normal occupancy schedules of the spaces in an Iraqi house. These schedules have been developed based on typical Iraqi family behavior. While Figure 4 presents internal gains and plug load, indicating schedules.

Table 1 presents envelope details for baseline, developed, and ultra-envelopes. The baseline model has zero insulation, while the Ultra model has the highest possible insulation, equal to 25 inches of polystyrene. Windows in the developed model are the same as in the baseline model, but they are 60% shaded.

Figure 3. Occupancy schedules for different zones of the house

Figure 4. Internal gains and plug load schedules

Table 1. Envelope details for baseline, developed, and ultra models

Model

Envelop (R-Value)

Roof

Wall

Floor

Windows

Baseline

0.93

2.6

0.2

0.986

Developed

25

26

23

0.986

Ultra

59

60

58

0.282

All R- value in (hr)(ft²)(°F)/Btu

For ultra-envelopes, the higher cost of insulation can be overcome with a long term of energy saving. While for the environmental impacts, sustainable insulation materials with lower embodied energy can be considered, and local sourcing could reduce transportation-related emissions.

Figure 5. HVAC systems and associated building services configuration

Figure 5 presents HVAC and other house systems that will be considered for energy simulation. In Iraq, the HVAC system is not centralized, and only occupied spaces are cooled. Kitchens and bathrooms are not provided with AC units.

There is no one rule for Iraqis to choose the size of the AC unit; the larger the capacity, the better. In many cases, it is either oversized or downsized. For energy modeling, the systems of the baseline, developed, and ultra models have been sized so that they have the minimum possible cooling capacity to provide thermal comfort on the hottest day of the year. Higher temperatures are required for the adaptive approach to be considered for energy consumption, using the same system size as the normal approach, and when the system is downsized to fit the needs of the adaptive approach, higher temperatures are required.

2.5 Thermal comfort conditions and simulated cases

Nine simulations will be conducted: three for each envelope, one for the normal approach, and two for the adaptive approach. Indoor thermal comfort conditioned for both approaches is determined using the CBE tool, compliant with ASHRAE requirements, as follows:

(1) For the normal approach, the indoor temperature will be set to 77℉ with zero air movement.

(2) In the first adaptive approach simulation, the temperature is set to 84℉ with an air speed of 0.8 m/s using the same AC unit size as the normal approach.

(3) In the second adaptive approach simulation, the system is resized to fit the new indoor conditions required for the adaptive approach.

2.6 Assumption

A typical Iraqi house will be modeled using IES VE software. Every time an energy simulation is run, indoor thermal comfort in the occupied space is checked. Air movement in between rooms is neglected.

2.7 Simulations steps

The factors that will be considering in Simulations already mention in item (2.1 to 2.5) which included building location, geometry and design, Climate, the envelopes, internal and external heat gain, thermal comfort condition, infiltration and ventilation, and finally HVAC system.

The modelling steps by using IES VE software shown in Figure 6.

Figure 6. Modelling flowchart by using IES VE software

3. Results and Analysis

3.1 Cooling load and overall energy consumption

Table 2 presents the system sizing for all three envelopes along with the percentage of the system sizing reductions. The average sizing reduction for the baseline is the lowest, while the developed envelope shows the highest reduction.

After running the simulations, energy consumption and energy savings were calculated. Figures 7 and 8 present details of energy savings in cooling loads, and overall energy savings have been presented for the three envelopes before and after resizing the system.

sizing reduction $=\frac{\text { Normal AC Unit Size }(\mathrm{kBtu})}{\text { Resized AC Unit Size }(\mathrm{kBtu})}$          (1)

Figure 7 presents the increase in cooling energy savings after resizing the system in comparison with the cooling energy savings before resizing the system in the baseline, developed, and ultra-envelopes of 31%, 44%, and 48%, respectively.

The highest energy savings were achieved in the baseline model, while the lowest system sizing cut was in the baseline (as shown in Table 2). Figure 8 shows that resizing the system contributes to about 30% more overall energy savings compared to the energy savings without resizing in the baseline. While in the developed and ultra-models, resizing the system contributes to about 40% more overall energy savings in comparison with the energy savings before resizing.

It is noted that the higher performance envelopes the less energy saving achieved using the strategy of the ceiling fans. On the contrary, the better the envelope, the less overall energy is required to cool the buildings.

Figure 7. Energy savings in cooling load from ATC and resizing the system

Figure 8. Overall energy savings achieved through ATC and resizing HVAC system

Table 2. AC system sizing for each envelope, resized system for adaptive approach, and how much cut in system sizing

Model

Space

AC Unit Size (kBtu)

Avg. Sizing Cut (%)

Master Bedroom

Bedroom

Living Room

Guest Room

Baseline

Normal

24

24

42

36

20

Resized

18

18

36

30

Sizing Cut

0.25

0.25

0.14

0.17

Developed

Normal

12

12

24

18

49

Resized

5

5

14

11

Sizing Cut

0.58

0.58

0.42

0.39

Ultra

Normal

8

8

18

12

39

Resized

5

5

11

7

Sizing Cut

0.38

0.38

0.39

0.42

3.2 Environmental impact (CO2 emissions)

Figure 9 presents the actual CO₂ emissions with the total energy production in Iraq from 2020 to 2023 according to the annual report for MOE [2] with 0.81 pounds/kWh (regarding the U.S. Energy Information Administration [22]).

Figure 9. Historical annual energy demand and CO2 emssions in Iraq (2021-2023)

Figure 10. Projected reduction in CO2 emissions using ATC strategies

Figure 10 presents the reduction in CO2 emissions with the total energy production in Iraq from 2020 to 2023 if the Iraq policy used the proposed scenario with a baseline envelope, which will lead to a reduction in the CO2 emission range of 7-13% and in the total energy consumption range of 12-21% with approximately zero cost.

4. Model Validation

For baseline model the cooling energy saving after resizing reach up to 35% and overall energy saving will be up to 20%, that match with research resulted by Kent et al. [23], it showed that the energy saving for zero energy office in Singapore were 32% by extending the thermal comfort temperature from 24℃ without using fan to 26.5℃ with using a fan, that was applied for 11 weeks without any change in thermal satisfaction.

5. Conclusions

1. Baseline envelope: Traditional construction, unshaded windows, and no insulation (low initial cost).

• Poor thermal performance.

• Highest cooling energy saving.

• Cooling energy saving reaches up to 31% after resizing.

• High overall energy consumption.

• Overall energy savings are around 30% after resizing.

2. Developed envelope: Improved insulation with the same windows as the baseline but with 60% shading. (Moderate budget housing projects).

• Highest cooling energy saving.

• Cooling energy saving reaches up to 44% after resizing.

• Overall energy savings of around 40% after resizing.

3. Ultra-envelope: Highest insulation and low U-value for windows (high initial cost).

• Lowest overall energy consumption.

• Cooling energy saving reaches up to 48% after resizing.

• Overall energy savings of around 40% after resizing.

• Recommended for a new project with sustainable design goals.

4. Applying the proposed strategy in Iraq will lead to a decrease in CO₂ emissions by 21% and total energy consumption by 21% compared to 2023.

  References

[1] Global Alliance for Buildings and Construction. (2022). Global status report for buildings and construction. Global ABC. https://globalabc.org/resources/publications/2022-global-status-report-buildings-and-construction.

[2] Ministry of Electricity. (20123). (2025). 2023 statistical annual report. https://storage.moelc.gov.iq/2024/10/14/2024_10_14_12102232142_3592046521806608.pdf.

[3] International Monetary Fund. (2015). Iraq: Selected issues (Report No. 15/236). https://www.imf.org/external/pubs/ft/scr/2015/cr15236.pdf.

[4] American Society of Heating, Refrigerating and Air-Conditioning Engineers. (2013). Standards for natural and mechanical ventilation: ASHRAE standard. https://www.ashrae.org/technical-resources/standards-and-guidelines/read-only-versions-of-ashrae-standards.

[5] Wandre, R., Gaddi, F.A., Dongre, V., Hasija, S., Ullah, I. (2022). Exploration of the factors affecting the performance of the ceiling fan: A brief review. IOP Conference Series: Materials Science and Engineering, 1259(1): 012025. https://doi.org/10.1088/1757-899X/1259/1/012025

[6] Ho, S.H., Rosario, L., Rahman, M.M. (2009). Thermal comfort enhancement by using a ceiling fan. Applied Thermal Engineering, 29(8-9): 1648-1656.‏ https://doi.org/10.1016/j.applthermaleng.2008.07.015 

[7] Bassiouny, R., Korah, N.S. (2011). Studying the features of air flow induced by a room ceiling-fan. Energy and Buildings, 43(8): 1913-1918.‏ https://doi.org/10.1016/j.enbuild.2011.03.034

[8] Hsiao, S.W., Lin, H.H., Lo, C.H. (2016). A study of thermal comfort enhancement by the optimization of airflow induced by a ceiling fan. Journal of Interdisciplinary Mathematics, 19(4): 859-891.‏ https://doi.org/10.1080/09720502.2016.1225935

[9] Lin, H.H. (2019). Improvement of human thermal comfort by optimizing the airflow induced by a ceiling fan. Sustainability, 11(12): 3370.‏ https://doi.org/10.3390/su11123370

[10] Luo, M., Zhang, H., Wang, Z., Arens, E., Chen, W., Bauman, F.S., Raftery, P. (2021). Ceiling-fan-Integrated air-Conditioning: Thermal comfort evaluations. Buildings and Cities, 2(1).‏ https://doi.org/10.5334/bc.137.s1

[11] Bamdad, K., Matour, S., Izadyar, N., Omrani, S. (2022). Impact of climate change on energy saving potentials of natural ventilation and ceiling fans in mixed-Mode buildings. Building and Environment, 209: 108662.‏ https://doi.org/10.1016/j.buildenv.2021.108662

[12] Gokarakonda, S., van Treeck, C., Rawal, R. (2022). Investigating optimum cooling set point temperature and air velocity for thermal comfort and energy conservation in mixed-Mode buildings in India. Energies, 15(6): 2259.‏ https://doi.org/10.3390/en15062259

[13] Gokarakonda, S., van Treeck, C., Rawal, R., Thomas, S. (2023). Energy performance of room air-conditioners and ceiling fans in mixed-Mode buildings. Energies, 16(19): 6807.‏ https://doi.org/10.3390/en16196807

[14] Arifin, Z., Rosli, M.A., Prasojo, Y.J., Alfaiz, N.F., Prasetyo, S.D., Mulyani, W. (2023). Economic feasibility investigation of on-grid and off-grid solar photovoltaic system installation in central Java. International Journal of Energy Production and Management, 8(3): 169-175.‏ https://doi.org/10.18280/ijepm.080305

[15] Al-Hadeethi, R., Hacham, W.S. (2023). Reducing energy consumption in Iraqi campuses with passive building strategies: A case study at Al-Khwarizmi College of Engineering. International Journal of Energy Production and Management, 8(3): 177-186.‏ https://doi.org/10.18280/ijepm.080306

[16] Kareem, H.K., Saleem, Y.M. (2025). Enhancing outdoor thermal comfort in residential areas of arid regions: A case study from Baghdad. International Journal of Sustainable Development and Planning, 20(1): 51-59. https://doi.org/10.18280/ijsdp.200106

[17] Al-Rubaye, A.S., Shamil, D., Samir, A., Sultan, H.K. (2025). Sustainable rehabilitation strategies for traditional Iraqi homes: Mitigating thermal challenges with innovative materials. International Journal of Sustainable Development and Planning, 20(3): 1053-1059. https://doi.org/10.18280/ijsdp.200312

[18] Al-Naseri, H., Fryer, R., Samir, A. (2023). Energy analysis of the integration of HRV and direct evaporative cooling for energy efficiency in buildings: A case study in Iraq. International Journal of Air-Conditioning and Refrigeration, 31(1): 25.‏ https://doi.org/10.1007/s44189-023-00039-3

[19] Fryer, R., Al-Naseri, H., Samir, A. (2023). The interaction between electricity grid and HVAC systems in Iraq (In the light of system thinking). AIP Conference Proceedings, 2977(1): 020071. https://doi.org/10.1063/5.0184419

[20] Ladybug Tools. (n.d.). EPW map. https://www.ladybug.tools/epwmap/, accessed on Mar. 15, 2025.

[21] International Code Council. (2021). 2021 International residential code. International Code Council. https://codes.iccsafe.org/content/IRC2021P2.

[22] U.S. Energy Information Administration. (n.d.). (2025). How much coal, natural gas, or petroleum is used to generate a kilowatt-Hour of electricity? https://www.eia.gov/tools/faqs/faq.php?id=74&t=11&utm_source=chatgpt.com.

[23] Kent, M.G., Huynh, N.K., Mishra, A.K., Tartarini, F., Lipczynska, A., Li, J., Sultan, Z., Goh, E., Karunagaran, G., Natarajan, A., Indrajith, A., Hendri, I., Narendra, K.I., Wu, V., Chin, N., Gao, C.P., Sapar, M., Seoh, A., Shuhadah, N., Valliappan, S., Jukes, T., Spanos, C., Schiavon, S. (2023). Energy savings and thermal comfort in a zero energy office building with fans in Singapore. Building and Environment, 243: 110674.‏ https://doi.org/10.1016/j.buildenv.2023.110674