Enhancing Indoor Air Quality and Thermal Comfort with a Ventilated Built-In Closet Design

Enhancing Indoor Air Quality and Thermal Comfort with a Ventilated Built-In Closet Design

Georges Khedari Preeda Chantawong* Thana Ananacha

Energy Engineering Technology Program, Department of Power Engineering Technology, College of Industrial Technology, King Mongkut’s University of Technology North Bangkok, Bangkok 10800, Thailand

Department of Architecture, Faculty of Architecture and Design, King Mongkut’s University of Technology North Bangkok, Bangkok 10800, Thailand

Corresponding Author Email: 
cpreeda@yahoo.com
Page: 
1963-1968
|
DOI: 
https://doi.org/10.18280/ijht.420613
Received: 
12 October 2024
|
Revised: 
5 December 2024
|
Accepted: 
13 December 2024
|
Available online: 
31 December 2024
| Citation

© 2024 The authors. This article is published by IIETA and is licensed under the CC BY 4.0 license (http://creativecommons.org/licenses/by/4.0/).

OPEN ACCESS

Abstract: 

Built-in closets (BC) are widely used as they look modern and suit new generations compared to traditional furniture. However, they are often made by particleboards using chemicals that might be harmful for humans. This paper reports experimental investigation of the performance of a new design concept termed ventilated built-in closet (VBC) that allows air to circulate inside to reduce heat accumulation, remove moisture, and avoid Mold growth. To this end, a small prototype of VBC of 1.248 m3 volume, made from commercial particleboards, was manufactured. Using a small DC fan located at the top, air enters at the bottom, circulates inside through appropriate openings located at different positions, and exits at the top. The VBC was located inside an empty room 52 m3 volume of a residential house located in Bangkok. Tests were conducted under different conditions and various ventilation scenarios and flowrates. Results are compared to a standard built-in closet (BC) of the same volume juxtaposed to the VBC. Measured data showed that the temperature inside the VBC is always lower than that of the BC whereas relative humidity difference is less noticeable due to close range of temperatures. The ventilation efficiency of the VBC defined as the temperature difference between BC and VBC depended closely on room temperature: The higher the room temperature, the larger is the temperature difference between BC and VBC and the lower is the ventilation rate, the better the ventilation efficiency. The room and the corresponding VBC ACH are 0.7 and 7.94. The VBC took a short period of about 10 minutes to remove all amount of deodorant (2000 mg/m3 TVOCs) sprayed inside. The main outcomes are practical design recommendation for integrating VBC in residences and buildings: The ventilation schedule varied between daytime (20 min ON/10 min OFF) and nighttime (10 min ON/20 min OFF), and the ventilation rate should be equal to that required to ensure good air change of the space.

Keywords: 

built-in close1t, relative humidity, temperature, total volatile compounds, ventilation

1. Introduction

Nowadays, built-in closet (BC) is a common design widely used by interior designers as it looks modern and suits new generations at reasonable cost compared to traditional wooden-based furniture. A variety of design configurations including different forms, styles, and shapes are available for different kinds of use such as kitchen, bedrooms, living etc. However, they are often made from particleboards or synthetic materials using some chemicals that might be harmful for humans.

It is well known that proper ventilation can help improve indoor comfort, protect the health of residents, and avoid heat and moisture accumulation. Developed countries introduced strict regulations and compulsory requirements for ventilation. The last three decades have seen extensive research efforts by researchers, architects, and professionals worldwide to develop sustainable and innovative ventilation systems, especially solar chimney-based ones appropriate to hot and humid climates. A complete review of this topic is beyond the scope of this paper. Several new architectural design options to ventilate indoor space were extensively investigated and proposed. They include roof [1-4], wall [5-7] and a combination of both [8] to reduce heat gain admission through houses and buildings and to save electricity of the air conditioning. A conceptual architectural design process for ventilation in built environment was reported by Polat [9]. A ventilation comfort chart was also developed [10] under Thailand hot and humid climate [11]. It was shown that ventilation can be adopted to achieve residents’ thermal comfort. An interesting experimental comparison between constant ventilation approach (CAV) and CO2 based ventilation control approach with respect to energy saving of air conditioning was conducted by Supachai et al. [12]. A variable ventilation control strategy for acceptable indoor air quality and enhancing energy saving was also proposed by Boonyayothin et al. [13]. Most cited research focused mainly on heat gain reduction to reduce electricity consumption of air conditioning and to improve indoor thermal comfort of the space without considering the effect of furniture on air quality [14].

With respect to built-in and furniture impact on indoor air quality and occupants, the specialized literature is rather limited and few research works are available. Lee et al. [15] reported a study on the evaluation of the thermal environment for condensation and Mold problem diagnosis around built-in furniture in Korea. They concluded that the hot and humid exterior thermal environment influences that of the interior of built-in furniture considerably. The effect of furniture arrangement on thermal comfort improvement for indoor environment was studied numerically by Horikiri et al. [16]. They showed that when the furniture is located too close to the main stream path from the inlet, it is regarded as obstacle along the flow path, causing the shear flow with high velocity gradients at the edges of the furniture and in the nearby regions, that further leading to re-circulation flows in anti-clockwise direction in the lower space between the window wall and the furniture. Wang et al. [17] conducted an experimental study using 1 m3 chambre to assess the impact of temperature on the key parameters of VOC emissions from wooden furniture. They found that with an increase of temperature from 25℃ to 35℃, the diffusion coefficient of VOCs emissions increases by 200% to 2993% significantly. A comprehensive review on integration of phase change materials in furniture for building energy storage and influence of internal thermal mass on the indoor thermal dynamics was reported by Hicham and Per [18]. Experimental evaluation of thermally activated furniture (TAF) panels mounted in front and on the sides of a workspace as space partition panels was published [19]. It was observed that TAF can be used to achieve personalized thermal comfort and have potential to save energy.

In Thailand and unfortunately due to the lack of compulsory regulation, modern houses and residence buildings in Thailand are still built without considering indoor space ventilation. Consequently, excessive heat, moisture, Odors, and Mold growth are observed in indoor spaces. Figure 1 shows examples of Mold observed at different parts of houses. This obviously can lead to poor indoor air quality that can cause several problems and health risks for inhabitants such as thermal discomfort, allergies, and contamination.

Figure 1. Examples of mold observed at different parts of houses

An integrated ventilation approach of all parts of the house including indoor space, built-in closet and attic is therefore attractive as it can solve indoor air quality and improve residents’ thermal comfort simultaneously. This paper focuses on the design and performance analysis of a new design concept of BC referred to as “Ventilated Built-in Closet” (VBC).

In the following sections, a detailed research methodology and design concept is presented. Extensive measurements of temperatures, relative humidity, air quality is conducted and analyzed, and the main results for future designs are outlined.

2. Methodology

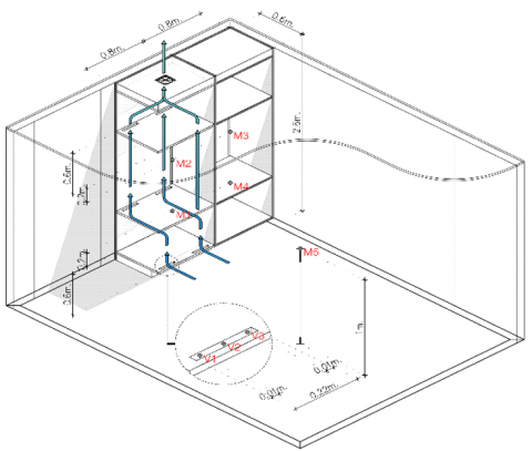
The new design concept of VBC is that it should allow air to enter at the lower part, circulate inside through various compartments and exit at the top. To conduct our investigation, we used a commercial particleboard and modified it according to our objective. Such, a small prototype of VBC of 1.248 m3 volume was built with a small DC fan (SANYO DENKI 24V, 0.16A) located at the top. Figure 2 shows a schematic and dimensions (left) and photograph (right) of the vented built-in closet. For ventilating the VBC, we consider two small rectangular openings (1.5 cm × 22 cm) at the lower part under the front for air inlet, and at the deep part of the two inner shelves as seen in Figure 2. Air enters at the bottom, flows through, and exits at the top (for dimensions refer to Figure 2). To assess the VBC performance, a standard built-in closet (non-ventilated) of the same volume was assembled and installed attached to the VBC. The panel separating the VBC and BC was well insulated using insulation foam and sealed using adhesive tape. The experimental setup was located inside an empty bedroom 4.0 m width, 5.0 m length, and 2.6 m height (52 m3 Volume) of a residential house located in Bangkok.

Figure 2. Schematic, dimensions and measuring positions (top), and photograph (bottom) of vented built-in closet and standard built-in closet

We remind that our objective is to develop an integrated ventilation approach of the residential house including indoor room space and attic. According to room dimensions, 4 units of VBC could be installed and we assume that the ventilation rate of 4 VBC units should be at least equal to that required for the bedroom. Based on ASHRAE standard requirement [20], Table 1 shows the minimum calculated required ventilation rate for the bedroom assumed occupied with 2 persons and one unit of VBC.

Table 1. Calculation of VBC required ventilation

Room

Dimensions

5 m × 4 m × 2.6 m

Volume

52 m3

Required Ventilation Rate

39.6 m3/h

Air Change Rate

0.76 ACH

Ventilated Built-in Closet

(VBC)

Dimensions (1 Unit VBC)

0.8 m × 0.6 m × 2.6 m

Volume (1 Unit VBC)

1.248 m3

Total Units

4

Total Volume

4.992 m3

Air Change Rate

7.94 ACH

Temperature and relative humidity were recorded at two positions inside the VBC and BC using online portable air mass measuring equipment available in the market. Measuring ranges and accuracy are 0 to 50℃ ±0.4℃, 0-100% ±3% respectively. The temperature and relative humidity at the room center at 1 m level from floor was measured using testo 177-H1, (-20 to 70℃ ±0.4℃, 0-100% ±2%). The total volatile compounds (TVOCs) were measured inside the VBC using a portable online air quality meter (range 0-2 mg/m3 ≤± 10%, -40 to 100℃ ± 0.3℃, 0-99% ± 3%). Inlet air velocity was measured at 3 positions at each of the inlet openings, Figure 2 (top) using testo 435 thermal anemometer (measuring range 0-20 m/s, ±0.2 m/s. To ensure accuracy tests, were repeated several times for daytime, nighttime and continuously on different days and under different ambient conditions. In this paper, data analysis focuses on determination of appropriate ventilation strategy, VBC hygrothermal performance, ventilation efficiency and air quality.

3. Results

3.1 Ventilation schedule

To determine the appropriate schedule of fan operation, four scenarios varying between ON (min) and OFF (min) were considered as follows: 20:10 / 15:15 / 10:20 / 5:25 for the daytime and 5:25 / 10:20 / 15:15 / 20:10 for nighttime. Tables 2 and 3 summarize the hourly average temperature differences between the BC and VBC for the different fan operation scenarios considered during daytime and nighttime respectively. During daytime, Table 2 indicates that increasing the time of operating and reducing that when fan is OFF increases the temperature difference between the BC and VBC. The highest temperature differences are observed mainly in the early hours of morning due to lower indoor temperature. However, when it increased from 15 to 20, the average daytime temperature difference increase is not very significant as compared to the small periods of operation (5 and 10 min). Therefore, increasing ventilation period more than 20 minutes is not necessary and a 20:10 ventilation scenario might be considered appropriate. At nighttime, Table 3 shows that operating the fan at 10:20 scenario is sufficient to give good thermal performance. Reduced ventilation time is also useful that limit noise at bedtime and saving electricity. In the following sections, a 20:10 daytime and 10:20 nighttime ventilation scenario is adopted.

Table 2. Daytime hourly average temperature differences between the BC and VBC for the different ventilation schedules considered

Daytime Ventilation Scenario

(min ON: min OFF)

Time (h)

05:25

10:20

15:15

20:10

06:00-07:00

0.49

0.58

0.68

0.71

07:00-08:00

0.51

0.65

0.74

0.81

08:00-09:00

0.50

0.64

0.76

0.85

09:00-10:00

0.54

0.66

0.77

0.79

10:00-11:00

0.60

0.67

0.79

0.77

11:00-12:00

0.59

0.69

0.79

0.80

12:00-13:00

0.63

0.73

0.81

0.82

13:00-14:00

0.62

0.72

0.79

0.78

14:00-15:00

0.65

0.76

0.76

0.76

15:00-16:00

0.64

0.78

0.74

0.79

16:00-17:00

0.63

0.74

0.75

0.81

17:00-18:00

0.61

0.71

0.77

0.81

Average

0.58

0.69

0.76

0.79

Table 3. Nighttime hourly average temperature differences between the BC and VBC for the different ventilation schedules considered

Nighttime Ventilation Scenario

(min ON: min OFF)

Time (h)

05:25

10:20

15:15

20:10

18:00-19:00

0.55

0.68

0.70

0.70

19:00-20:00

0.45

0.66

0.68

0.69

20:00-21:00

0.43

0.65

0.64

0.62

21:00-22:00

0.43

0.64

0.63

0.64

22:00-23:00

0.42

0.61

0.61

0.62

23:00-24:00

0.43

0.63

0.61

0.63

00:00-01:00

0.42

0.61

0.61

0.62

01:00-02:00

0.40

0.61

0.62

0.62

02:00-03:00

0.39

0.60

0.64

0.63

03:00-04:00

0.37

0.62

0.61

0.64

04:00-05:00

0.39

0.61

0.62

0.60

05:00-06:00

0.39

0.57

0.61

0.62

Average

0.42

0.62

0.63

0.64

3.2 Temperature and relative humidity

In this section, we varied the VBC ventilation rate by adjusting the voltage supplied to the fan. Table 4 gives the three flowrates considered and the corresponding VBC ACH. Tests were conducted during different days and under different ambient conditions. Data collected are averaged every 10 minutes. Figure 3 shows the variations of temperatures differences between the VBC and room DT(TVBC-TR) and between the BC and room DT(TBC-TR). Figure 4 shows the variation of relative humidity variation of ventilated and non-ventilated built-in closet compared to room relative humidity for the three ventilation rates considered. Fluctuation of measured data varied well following the ambient conditions variations.

Under test conditions considered and despite the fact tests were conducted on several days with varying ambient conditions, it is observed that measured data showed the temperature inside the VBC is always lower than that of the standard BC. Obviously higher temperatures differences are observed during daytime due to high room temperature. The relative humidity difference is less noticeable due to the small difference of temperatures between measured data. Increasing the ventilation rate did not lead to any significant performance improvement as the measured temperatures differences decreased. Therefore, a ventilation rate equal to that required for bedroom ventilation is appropriate and can be adopted by architects and interior designer as a general rule for designing VBC.

Figure 3. Temperatures differences between ventilated (VBC) and non-ventilated (BC) built-in closets and room for different ventilations rates

Figure 4. Hourly variation of relative humidity of ventilated (VBC) and non-ventilated (BC) built-in closets compared to room relative humidity at different ventilations rates

Table 4. Fan voltage, measured inlet air velocity, flow rate and VBC air change rate

Fan Voltage

Vin (m/s)

Flow (m3/h)

VBC ACH

22V

0.71 ± 0.05

16.87

13.52

20V

0.58 ± 0.04

13.78

11.04

18V

0.43 ± 0.04

10.22

8.19

3.3 Effectiveness

To make subjective comparative analysis, ensure accuracy and reproductivity of the performance of the VBC with field tests conducted under different days and variable ambient conditions, we define the ventilation efficiency of the VBC as the calculated temperature difference between non-ventilated and ventilated built-in closet (DT(TBC-TVBC)) plotted versus room temperature. Figure 5 shows the scatter of the efficiency of the VBC for the different ventilation rates considered during daytime (top) and nighttime (bottom).

Figure 5. Scatter of the efficiency of the VBC versus room temperature for different ventilation rates for daytime (6:00-18:00) and nighttime (18:00-6:00)

It can be observed that there is a close dependence on room temperature: the higher the room temperature, the larger is the temperature difference between non-ventilated and ventilated built-in closets. In addition, and at the same ambient room temperature the lower is the ventilation rate, the better the ventilation efficiency. These constatations demonstrated again that the recommended VBC ventilation rate should be equal to that required of the room or space where it is located that is of the main findings of this research paper.

3.4 Air quality

To demonstrate the benefit of the proposed VBC concept to remove Odors and chemicals form inside the BC and consequently from the indoor space, we conducted a simple test by spraying deodorant inside the built-in and varied the operation of ventilation fan between OFF and ON periodically. Figure 6 shows the variations of measured the total volatile compounds TVOCs inside the VBC for two cycles of fan operation. At the beginning, the fan was switched off for 25 minutes, then it was activated. It can be observed that it took a short period about 10 minutes to remove all amount of the TVOCs. Then another amount of deodorant was sprayed again into the BC at the 70th minute and switching OFF the fan. Ten minutes later, we reoperated the fan and the TVOCs was removed again very quickly. Therefore, it is well demonstrated that the VBC concept can assure fast removal of dirty and polluted air and can help to achieve good indoor air quality continuously.

Figure 6. The variations of TVOCs versus time of the VBC with two cycles of fan switched OFF and ON

4. Conclusion

Experimental investigation of the performance of a new design concept termed ventilated built-in closet (VBC) aimed to reduce heat accumulation, remove moisture, and avoid Mold growth is reported and discussed. A small prototype of VBC of 1.248 m3 volume, made from commercial particleboards, was manufactured. A DC fan located at the top with appropriate openings located at different positions allowed ventilation. Tests were conducted using a room 52 m3 of volume located in a residential house in Bangkok. Different ambient conditions, ventilation rates and ventilation scenarios were considered. Comparison of measured data to a standard BC showed good performance. The temperature inside the VBC is always lower than that of the BC and higher difference is observed during daytime. VBC has good capability to fast removal of Odors and dirty air, maintain good indoor air quality and improve thermal comfort.

The main outputs of this paper are useful design recommendations for architects and interior designers as follows: The dimensions of the prototype considered (0.8 m × 0.6 m × 2.6 m), widely used in the market, can be adopted by professionals as a standard unit. The number of units VBC to be installed in a specific indoor space should be done carefully to ensure good performance, limit noise, and avoid excessive air change. The appropriate ventilation schedule of VBC varied between daytime (20 min ON/10 min OFF) and nighttime (10 min ON/20 min OFF). and the ventilation rate should be equal to that required to ensure sufficient room air change of the room or space where it is located. Due to VBC advantages, adoption and integration into the market seems therefore promising and would promote sustainability in the built-in environment.

  References

[1] Chantawong, P., Anan-archa, A., Khedari, J. (2022). A new configuration of roof skylight combined with solar chimney. Journal of Engineering Research, 2022: 1-17. http://doi.org/10.36909/jer.16259

[2] Anan-archa, A., Chantawong, P., Khedari, J. (2023). Experimental and numerical investigation on design optimization of a roof skylight combined with solar chimney. International Journal of Heat and Technology, 41(3): 723-729. https://doi.org/10.18280/ijht.410327

[3] Villagran Munar, E.A., Bojacá Aldana, C.R. (2019). CFD simulation of the increase of the roof ventilation area in a traditional Colombian greenhouse: Effect on air flow patterns and thermal behaviour. International Journal of Heat and Technology, 37(3): 881-892. https://doi.org/10.18280/ijht.370326

[4] Waewsak, J., Hirunlabh, J., Khedari, J., Shin, U.C. (2003). Performance evaluation of the BSRC multi-purpose bio-climatic roof. Building and Environment, 38(11): 1297-1302. https://doi.org/10.1016/S0360-1323(03)00116-1

[5] Ananacha, T., Puangsombut, W., Hirunlabh, J., Khedari, J. (2013). Field investigation of the thermal performance of a Thai modern façade wall. International Journal of Ventilation, 12(3): 223-234. http://doi.org/10.1080/14733315.2013.11684018

[6] Capasso L., Diana A., Manca O., Nardini S., Vigna S. (2019). Numerical investigation on a solar chimney in a building façade under different climatic condition, TECNICA ITALIANA-Italian Journal of Engineering Science, 63(2-4): 409-416. https://doi.org/10.18280/ti-ijes.632-443

[7] Khedari, J., Kaewruang, S., Pratinthong, N., Hirunlabh, J. (2011). Natural ventilation of houses by a Trombe wall under the climatic conditions in Thailand. International Journal of Ambient Energy, 20(2): 85-94. https://doi.org/10.1080/01430750.1999.9675323

[8] Thateenaranon, P., Amornkitbamrung, M., Hirunlabh, J., Khedari, J., Waewsak, J. (2017). Full-scale field investigation of a bio-climatic house under Thailand tropical climate. Building and Environment, 126: 54-67. https://doi.org/10.1016/j.buildenv.2017.09.027

[9] Polat, D. (2020). A conceptual architectural design process for ventilation in built environment. MEGARON Yıldız Technical University. Faculty of Architecture E-Journal, 15(1): 25-42. http://doi.org/10.14744/megaron.2020.84756

[10] Khedari, J., Yamtraipat, N., Pratinthong, N., Hirunlabh, J. (2000). Thailand ventilation comfort chart. Energy and Building, 32(3): 245-249. https://doi.org/10.1016/S0378-7788(00)00050-5

[11] Khedari, J., Sangprajak, A., Hirunlabh, J. (2002). Thailand climatic zones. Renewable Energy, 25(2): 267-280. https://doi.org/10.1016/S0960-1481(01)00005-2

[12] Supachai, P., Joseph Khedari, J., Wisitsak, S. (2015). Experimental comparison between CAV control and CO2 ventilation control approaches with respect to energy saving of air conditioner. Applied Mechanics and Materials, 752-753: 1175-1182. http://doi.org/10.4028/www.scientific.net/AMM.752-753.1175

[13] Boonyayothin, V., Hirunlabh, J., Khummongkol, P., Teekasap, S., Shin, U.C., Khedari, J. (2011). Ventilation control approach for acceptable indoor air quality and enhancing energy saving in Thailand. International Journal of Ventilation, 9(4): 315-326. https://doi.org/10.1080/14733315.2011.11683889 

[14] Souppornsingh, P., Chantawong, P., Khedari, J. (2024). Experimental investigation on thermoelectric power generation using diurnal temperature difference through glazed windows. International Journal of Heat and Technology, 42(2): 653-658. https://doi.org/10.18280/ijht.420232

[15] Lee, H.H., Oha, H.R., Lima, J.H., Song, S.Y. (2016). Evaluation of the thermal environment for condensation and mold problem diagnosis around built-in furniture in Korean. Energy Procedia, 96: 601-612. https://doi.org/10.1016/j.egypro.2016.09.108

[16] Horikiri, K., Yao, Y., Jun, Y. (2015). Numerical optimisation of thermal comfort improvement for indoor environment with occupants and furniture. Energy and Buildings, 88: 303-315. https://doi.org/10.1016/j.enbuild.2014.12.015

[17] Wang, Y., Wang, H., Tan, Y., Liu, J., Wang, K., Ji, W., Sun, L., Yu, X., Zhao, J., Xu, B., Xiong, J. (2021). Measurement of the key parameters of VOC emissions from wooden furniture, and the impact of temperature. Atmospheric Environment, 259: 118510. https://doi.org/10.1016/j.atmosenv.2021.118510

[18] Hicham, J., Per, H. (2017). Influence of internal thermal mass on the indoor thermal dynamics and integration of phase change materials in furniture for building energy storage: A review. Renewable and Sustainable Energy Reviews, 69: 19-32. https://doi.org/10.1016/j.rser.2016.11.145

[19] Rawal, R., Garg, V., Kumar, S., Adhvaryu, B. (2020). Evaluation of thermally activated furniture on thermal comfort and energy consumption: An experimental study. Energy & Buildings, 223: 110154. https://doi.org/10.1016/j.enbuild.2020.110154

[20] American Society of Heating, Refrigerating and Air-Conditioning Engineers, Inc. (2016). ASHRAE Standard 62.1-2016 Ventilation for Acceptable Indoor Air Quality. Atlanta. https://ashrae.iwrapper.com/ASHRAE_PREVIEW_ONLY_STANDARDS/STD_62.1_2016.